(CT) - Kỷ niệm 51 năm Ngày Giải phóng miền Nam, thống nhất đất nước, 140 năm ngày Quốc tế Lao động và 136 năm Ngày sinh Chủ tịch Hồ Chí Minh, sáng 29-4-2026, đoàn đại biểu Đảng ủy, HĐND, UBND, Ủy ban MTTQVN phường Ninh Kiều long trọng viếng Tượng đài Chủ tịch Hồ Chí Minh ở Bến Ninh Kiều và làm lễ báo công dâng Bác.
-
Triển khai công tác tuyển sinh vào các trường đại học, cao đẳng năm 2008
Trường Trung học Cơ điện và Kỹ thuật Nông nghiệp Nam bộ: Mở 3 ngành mới bậc trung cấp nghề
-
Học tập mô hình quản lý và cho toa thuốc trên mạng của Trung tâm Chẩn đoán Y khoa Cần Thơ
-
Chương trình Mekong 1.000: Mở rộng tuyển chọn ứng viên có trình độ tiếng Pháp, tiếng Hoa
-
Khởi công xây dựng Nhà ga hành khách Cảng hàng không Cần Thơ
-
Triển khai thực hiện miễn một số khoản phí, lệ phí
* Mọi trường hợp làm hộ khẩu, chứng minh nhân dân đều không phải nộp lệ phí * Bỏ giấy phép khắc dấu cho doanh nghiệp
-
Miễn phí đào tạo nghề cho lao động đi làm việc ở nước ngoài
Trung tâm Giới thiệu việc làm (GTVL) Thanh niên TP Cần Thơ: Tuyển trên 5.000 lao động
-
Thông qua chương trình phát triển thể dục thể thao giai đoạn 2006 - 2010 và tầm nhìn đến năm 2020
Xây dựng đường chạy điền kinh tiêu chuẩn quốc tế
-
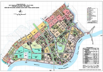
Qui hoạch chi tiết xây dựng tỷ lệ 1/2000 khu đô thị An Bình - Mỹ Khánh
T.D
-
Sức tiêu thụ hàng điện lạnh bắt đầu tăng; giá nhiều dòng máy điện thoại di động giảm mạnh
TRIỀU DÂNG
-
Trường Đại học Cần Thơ xin tăng chỉ tiêu tuyển sinh
Trường Cao đẳng Kinh tế - Kỹ thuật Cần Thơ: Tư vấn tuyển sinh cho 20.000- 50.000 học sinh
-
Nhiều vướng mắc, bất cập trong xây dựng chậm được xử lý
* Phê duyệt quy hoạch Khu Công nghiệp Hưng Phú
-
Phấn đấu 80% công chức cấp xã đạt chuẩn trong năm 2008
-
Nhiều hoạt động kỷ niệm ngày Quốc tế Phụ nữ 8-3
-
Bệnh viện 121 (QK 9) cứu sống một người bị rắn hổ đất cắn
-
Tăng máy thận nhân tạo cho bệnh nhân theo phương thức xã hội hóa
-
Xây dựng công viên tại khu chung cư 178
-
Tập trung thanh tra, kiểm tra các lĩnh vực liên quan đến quản lý nhà nước và cải cách hành chính
-
665 thanh niên lên đường nhập ngũ và phục vụ có thời hạn trong lực lượng Công an Nhân dân
ANH DŨNG
-
Hội thảo khoa học “Vùng đất Nam bộ thời kỳ cận đại”
Q.T
-
Đồng chí Trần Thanh Mẫn được bầu giữ chức vụ Chủ tịch UBND TP Cần Thơ
* Sẽ bầu bổ sung 2 Phó Chủ tịch UBND thành phố
-
Nhiều hoạt động kỷ niệm 51 năm Ngày Giải phóng miền Nam, thống nhất đất nước

- Ông Trần Văn Huyến, Phó Bí thư Thành ủy: Nâng cao kỹ năng số của cán bộ, công chức, góp phần hình thành chính quyền số, xã hội số trên địa bàn thành phố
- Ông Lê Công Lý được bầu giữ chức Phó Chủ tịch UBND TP Cần Thơ
- Đoàn công tác Trung ương thăm, tặng quà Mẹ Việt Nam Anh hùng, gia đình chính sách
- Trưởng Ban Tổ chức Trung ương dâng hương tại Đền thờ Vua Hùng
- Lãnh đạo thành phố tổng duyệt Chương trình họp mặt kỷ niệm 51 năm Ngày Giải phóng miền Nam, thống nhất đất nước
- Lãnh đạo thành phố viếng Nghĩa trang Liệt sĩ Hậu Giang
- Lãnh đạo TP Cần Thơ viếng Nghĩa trang Liệt sĩ thành phố ở phường Cái Răng
- Lãnh đạo TP Cần Thơ viếng Nghĩa trang Liệt sĩ tại phường Mỹ Xuyên
- Lãnh đạo TP Cần Thơ viếng Nghĩa trang Liệt sĩ Sóc Trăng
-
Công bố các quyết định về công tác cán bộ của Chi cục Quản lý thị trường TP Cần Thơ

- Lãnh đạo TP Cần Thơ cùng Tập đoàn Hùng Nhơn và Tập đoàn De Heus khảo sát vùng nuôi trồng thủy sản tại xã Liêu Tú
- Thắt chặt quan hệ hợp tác đầu tư giữa TP Cần Thơ và Tổng Công ty Tân Cảng Sài Gòn
- TP Cần Thơ long trọng tổ chức họp mặt mừng Tết Chôl Chnăm Thmây năm 2026
- Lãnh đạo TP Cần Thơ kiểm tra Dự án Khu Di tích lịch sử Lộ Vòng Cung
- Kiểm tra công tác tổ chức Giỗ Tổ Hùng Vương, Lễ hội Bánh dân gian Nam Bộ năm 2026
- Ông Lê Công Lý được bầu giữ chức Phó Chủ tịch UBND TP Cần Thơ
- Đẩy nhanh tiến độ các dự án trọng điểm của TP Cần Thơ từ nguồn vốn ngoài ngân sách
- Phó Chủ tịch Quốc hội Vũ Hồng Thanh thăm, chúc Tết Chôl Chnăm Thmây tại TP Cần Thơ
- Trưởng Ban Tổ chức Trung ương dâng hương tại Đền thờ Vua Hùng
-
30-4 và mệnh lệnh của hòa bình: Xây dựng một Việt Nam hùng cường, nhân văn, hạnh phúc
-
Chủ tịch Quốc hội Trần Thanh Mẫn thăm, tặng quà gia đình chính sách, người lao động tại An Giang
-
Tổng Bí thư, Chủ tịch nước Tô Lâm dự Lễ Thượng cờ "Thống nhất non sông"
-
Toàn văn nội dung nói chuyện của Tổng Bí thư, Chủ tịch nước Tô Lâm với công nhân, người lao động TP Hồ Chí Minh
-
Thời tiết dịp nghỉ lễ 30/4 ,1/5: Nhiều khu vực ngày nắng, chiều tối có mưa dông
-
An Giang: Cháy, nổ tàu cá khiến 7 người bị thương, thiệt hại khoảng 1,5 tỷ đồng
-
Cà Mau: Thành lập Bảo tàng và xây dựng biểu tượng tôn vinh lúa nước
-
Cà Mau: Khai mạc Cuộc thi gạo ngon vùng ĐBSCL lần thứ I năm 2026
-
Hỗ trợ người dân bị sạt lở nghiêm trọng trên kênh xáng Bạc Liêu - Cà Mau
-
Dịch bệnh trên tôm, cua, sò huyết có chiều hướng gia tăng
